设计与制造:GB/T 12233
结构长度:GB/T 12221
法兰标准:HG/T 20592, ASME B16.5
公称压力:PN6, PN10, PN16, Class150
连接方式:法兰式
压力试验:GB/T 13927
操作方式:手轮,伞齿轮,气动,电动
| 遵循规范 | |
| 设计与制造: | GB/T 12233 |
| 结构长度: | GB/T 12221 |
| 法兰标准: | HG/T 20592,ASME B16.5 |
| 公称压力: | PN6,PN10,PN16,Class150 |
| 连接方式: | 法兰式 |
| 压力试验: | GB/T 13927 |
| 操作方式: | 手轮,伞齿轮,气动,电动 |
| 基本型号(全衬里) | 公称压力 PN1.0~2.5MPa 公称通径 DN15~450mm | ||||
| 手动 | 气动 | 蜗轮转动 | 电动 | ||
| J41F3 | J45F3 | J641F3 | J441F3 | J541F3 | J941F3 |
| J41F4 | J45F4 | J641F4 | J441F4 | J541F4 | J941F4 |
| J41F46 | J45F46 | J641F46 | J441F46 | J541F46 | J941F46 |
| J41PFA | J45PFA | J641PFA | J44PFA | J541PFA | J941PFA |
| 主要零部件材料表 | ||||||
| 序号 | 零件名称 | 碳钢 | 不锈钢 | 超低碳不锈钢 | ||
| C | P | R | PL | RL | ||
| 1 | 阀体 | WCB | CF8 | CF8M | CF3 | CF3M |
| 2 | 支架 | WCB | CF8 | CF8M | CF3 | CF3M |
| 3 | 阀瓣 | WCB | 304 | 316 | 304 | 316L |
| 4 | 压盖 | WCB | 304 | 316 | 304 | 316L |
| 5 | 衬里层 | FEP(F46)/PTFE(F4)/PFA | ||||
| 6 | 填料 | PTFE | PTFE | PTFE | PTFE | PTFE |
| 7 | 螺栓 | 25# | 304 | 316 | 304 | 316 |
| 8 | 螺母 | 25# | 304 | 316 | 304 | 316 |
| 9 | 手轮 | QT450 | ||||
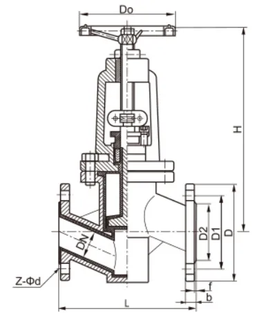
| 主要连接尺寸及重量 | |||||||
| 公称通径 DN(mm) | 标准值 | ||||||
| L | D | D1 | D2 | f | Z-Φd | Kg | |
| PN1.0MPa | |||||||
| 15 | 130 | 95 | 65 | 45 | 3 | 4-Φ14 | 4.5 |
| 20 | 150 | 105 | 75 | 55 | 3 | 4-Φ14 | 6 |
| 25 | 160 | 115 | 85 | 65 | 3 | 4-Φ14 | 7.5 |
| 32 | 180 | 140 | 100 | 78 | 3 | 4-Φ18 | 10 |
| 40 | 200 | 150 | 110 | 85 | 3 | 4-Φ18 | 14 |
| 50 | 230 | 165 | 125 | 100 | 3 | 4-Φ18 | 16 |
| 65 | 290 | 185 | 145 | 120 | 3.5 | 8-Φ18 | 24 |
| 80 | 310 | 200 | 160 | 135 | 3.5 | 8-Φ18 | 32 |
| 100 | 350 | 220 | 180 | 155 | 3.5 | 8-Φ18 | 40 |
| 125 | 400 | 250 | 210 | 185 | 4 | 8-Φ18 | 61 |
| 150 | 480 | 285 | 240 | 210 | 4 | 8-Φ22 | 80 |
| 200 | 600 | 340 | 295 | 265 | 4.5 | 8-Φ22 | 132 |
| 250 | 622 | 395 | 350 | 320 | 4.5 | 12-Φ22 | 240 |
| 300 | 698 | 445 | 400 | 368 | 5 | 12-Φ22 | 410 |
| 350 | 787 | 505 | 460 | 420 | 5 | 16-Φ22 | 490 |
| 400 | 914 | 565 | 515 | 482 | 5 | 16-Φ26 | 630 |
| 450 | 978 | 615 | 565 | 525 | 6 | 20-Φ26 | 770 |
| PN1.6MPa | |||||||
| 15 | 130 | 95 | 65 | 45 | 3 | 4-Φ14 | 4.5 |
| 20 | 150 | 105 | 75 | 55 | 3 | 4-Φ14 | 6 |
| 25 | 160 | 115 | 85 | 65 | 3 | 4-Φ14 | 7.5 |
| 32 | 180 | 140 | 100 | 78 | 3 | 4-Φ18 | 10 |
| 40 | 200 | 150 | 110 | 85 | 3 | 4-Φ18 | 14 |
| 50 | 230 | 165 | 125 | 100 | 3 | 4-Φ18 | 16 |
| 65 | 290 | 185 | 145 | 120 | 3.5 | 8-Φ18 | 24 |
| 80 | 310 | 200 | 160 | 135 | 3.5 | 8-Φ18 | 32 |
| 100 | 350 | 220 | 180 | 155 | 3.5 | 8-Φ18 | 40 |
| 125 | 400 | 250 | 210 | 185 | 4 | 8-Φ18 | 61 |
| 150 | 480 | 285 | 240 | 210 | 4 | 8-Φ22 | 80 |
| 200 | 600 | 340 | 295 | 265 | 4.5 | 12-Φ22 | 132 |
| 250 | 622 | 405 | 355 | 320 | 4.5 | 12-Φ26 | 250 |
| 300 | 698 | 460 | 410 | 375 | 5 | 12-Φ26 | 420 |
| 350 | 787 | 520 | 470 | 435 | 5 | 16-Φ26 | 506 |
| 400 | 914 | 580 | 525 | 485 | 5 | 16-Φ30 | 640 |
| 450 | 978 | 640 | 585 | 540 | 6 | 20-Φ30 | 790 |
| PN2.5MPa | |||||||
| 15 | 130 | 95 | 65 | 45 | 3 | 4-Φ14 | 4.5 |
| 20 | 150 | 105 | 75 | 55 | 3 | 4-Φ14 | 6 |
| 25 | 160 | 115 | 85 | 65 | 3 | 4-Φ14 | 7.5 |
| 32 | 180 | 140 | 100 | 78 | 3 | 4-Φ18 | 10.5 |
| 40 | 200 | 150 | 110 | 85 | 3 | 4-Φ18 | 14 |
| 50 | 230 | 165 | 125 | 100 | 3 | 4-Φ18 | 17 |
| 65 | 290 | 185 | 145 | 120 | 3.5 | 8-Φ18 | 25 |
| 80 | 310 | 200 | 160 | 135 | 3.5 | 8-Φ18 | 35 |
| 100 | 350 | 235 | 190 | 160 | 3.5 | 8-Φ22 | 45 |
| 125 | 400 | 270 | 220 | 188 | 4 | 8-Φ26 | 68 |
| 150 | 480 | 300 | 250 | 218 | 4 | 8-Φ26 | 90 |
| 200 | 600 | 360 | 310 | 278 | 4.5 | 12-Φ26 | 145 |
| 250 | 622 | 425 | 370 | 320 | 5 | 12-Φ30 | 265 |
Zhejiang Lierdao Valve Co., Ltd
咨询热线 0577-86860737
公司地址:
浙江温州龙湾空港新区金海三道903号
扫码咨询更多:
Copyright © 2026 浙江利尔多阀门有限公司 All Rights Reserved.